Eladó Családi ház ingatlan - Gárdony
Ingatlan azonosító: A/I/2025/0089
« Vissza a listáhozCsaládi ház
Gárdony, Belváros és környéke
Fejér
57 900 000,- Ft
FELÚJÍTANDÓ CSALÁDI HÁZ ELADÓ SAROKTELKEN!
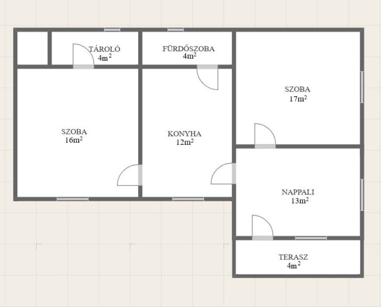
Gárdony központjától mindössze egy kilométerre, nyugodt családi házas környezetben eladó egy 451 négyzetméteres saroktelken álló, 70m2 hasznos lakótérrel rendelkező családi ház. Az ingatlan az 1950-es évek végén épült vert falból, majd az 1970-es években téglafalazattal bővítették, így vegyes szerkezetű. A tető cserépfedésű, a fűtést gázkonvektor, a meleg vizet gáz átfolyós vízmelegítő biztosítja. A ház összközműves, víz, villany, gáz és csatorna be van kötve, emellett fúrt kút is rendelkezésre áll.
Az épület állapota felújítandó, ami lehetőséget ad új tulajdonosának, hogy saját ízlése és igényei szerint alakítsa. A saroktelek elhelyezkedése jól kihasználható, a kertben pedig egy különálló, körülbelül 8–10 négyzetméteres melléképület is található, amely nyári konyhaként vagy kerti szerszámok tárolására is kiválóan funkcionál.
A mindennapokhoz szükséges szolgáltatások, mint bolt, iskola, óvoda, orvosi rendelő és buszmegálló rövid távolságra elérhetők, a Velencei-tó partja körülbelül tíz–tizenöt perces sétával közelíthető meg. A vasútállomás 1,5km-re található, így Székesfehérvár vagy Budapest felé ingázók számára is könnyen megközelíthető.
SAJÁT OTTHONNAK, NYARALÓNAK VAGY BEFEKTETÉSNEK IS KIVÁLÓ LEHETŐSÉG!
I.ár: 57,9 Millió Ft Tel.: +3670/358-8086
Irodánk szolgáltatást nyújt Önnek :
díjmentes hitel ügyintézésben, energetikai tanúsítvány elkészítésében, értékbecslésben, költöztetésben, lakásfelújításban, lakberendezésben és ügyvédi közreműködésben.
Nézze meg további kínálatunkat a www.feherhazingatlan.hu web oldalunkon.
Az ingatlan megfelel a jelenlegi Otthonteremtési támogatás (Otthon Start program), valamint a CSOK Plusz feltételeinek. CSOK-kal vásárolt ingatlanra NEM KELL illetéket fizetni ez, az állam által elengedésre kerül!
Gárdony településen, 70 m2 -es Családi ház Eladó
| Alapterület: | 70 m2 | Állapot: | Felújításra szoruló |
| Telek: | 451 m2 | Fűtés: | Gázkonvektor |
| Szobák: | 2 db | Emelet: | |
| Félszobák: | 1 db | Parkolás: |
- Hívjanak fel, kérdésem van!
- Megnézem, időpontot kérek!
- Gyorslistára teszem!
- Nyomtatás
- Azonosító: A/I/2025/0089
Kapcsolat: Csik Barbara, Tel.: 06 (70) 358-8086
E-mail: baraba.csik@feherhazingatlan.hu - Fehérház Ingatlaniroda





