Eladó Családi ház ingatlan - Sárszentmihály
Ingatlan azonosító: A/I/2025/0113
« Vissza a listáhozCsaládi ház
Sárszentmihály, Belváros és környéke
Fejér
71 900 000,- Ft
SÁRSZENTMIHÁLYON NAPPALI+2 SZOBÁS CSALÁDI HÁZ ELADÓ!
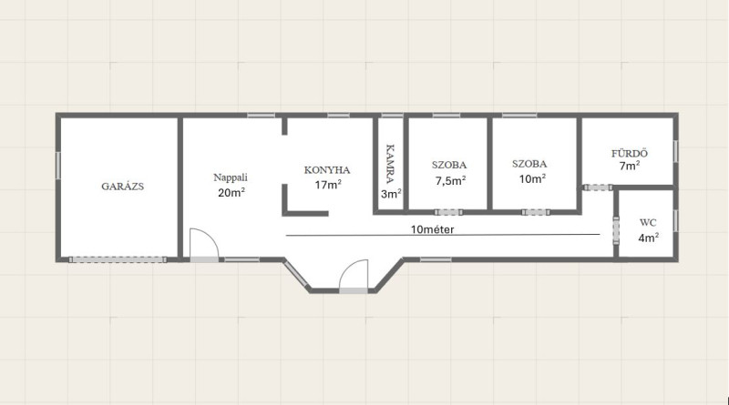
Székesfehérvártól mindössze 10 km-re, Sárszentmihályon eladó egy 78 m² hasznos lakóterű, tégla falazatú családi ház, amely 2005-ben épült.
A házhoz egy 2290 m²-es, gyönyörű, hátsó szomszédtól mentes telek tartozik, ahol a csendet és a madárcsicsergést páratlan kilátás egészíti ki a dombokra és a környező földekre. A naplementét akár a nappaliból, a konyhából vagy bármelyik szobából is élvezhetjük.
Az ingatlan jó állapotú, teljes közművel rendelkezik, fűtését cirkó kazán biztosítja padlófűtéssel. Két szoba és egy tágas nappali található benne, a fürdőszobában pedig kád és zuhanyzó is helyet kapott, külön WC-vel, új szaniterekkel és csapokkal. Az amerikai stílusú konyha új, modern bútorral felszerelt, valamint egy praktikus kamra is kapcsolódik hozzá.
A főépülethez garázs tartozik, amely közvetlenül a házhoz épült, így igény esetén akár a nappalival is összenyitható. Ezzel egyszerűen bővíthető a lakótér – a garázsból egy plusz szoba kialakítható, miközben az udvaron továbbra is marad hely beállónak vagy új parkoló kialakítására.
A telken egy 97 m²-es vályogház is található, amely felújítást vagy bontást igényel, de kiváló alapot nyújthat vendégház, műhely, iroda, szépségszalon vagy akár kétgenerációs otthon kialakításához.
Az ingatlan aszfaltozott, csendes, átmenő forgalomtól mentes utcában helyezkedik el.
Az ingatlan tehermentes, azonnal költözhető.
ITT TÉNYLEG MEGTALÁLHATJA A NYUGALMAT.
I.ár: 71,9m Ft Tel.: +3670 358 8086
Irodánk szolgáltatást nyújt Önnek :
díjmentes hitel ügyintézésben, energetikai tanúsítvány elkészítésében, értékbecslésben, költöztetésben, lakásfelújításban, lakberendezésben és ügyvédi közreműködésben.
Nézze meg további kínálatunkat a www.feherhazingatlan.hu web oldalunkon.
Az ingatlan megfelel a jelenlegi Otthonteremtési támogatás (Otthon Start program), valamint a CSOK Plusz feltételeinek. CSOK-kal vásárolt ingatlanra NEM KELL illetéket fizetni ez, az állam által elengedésre kerül!
Sárszentmihály településen, 78 m2 -es Családi ház Eladó
| Alapterület: | 78 m2 | Állapot: | Jó |
| Telek: | 2290 m2 | Fűtés: | Cirkó fűtés |
| Szobák: | 3 db | Emelet: | |
| Félszobák: | Parkolás: | Garázsban |
- Hívjanak fel, kérdésem van!
- Megnézem, időpontot kérek!
- Gyorslistára teszem!
- Nyomtatás
- Azonosító: A/I/2025/0113
Kapcsolat: Csik Barbara, Tel.: 06 (70) 358-8086
E-mail: baraba.csik@feherhazingatlan.hu - Fehérház Ingatlaniroda





